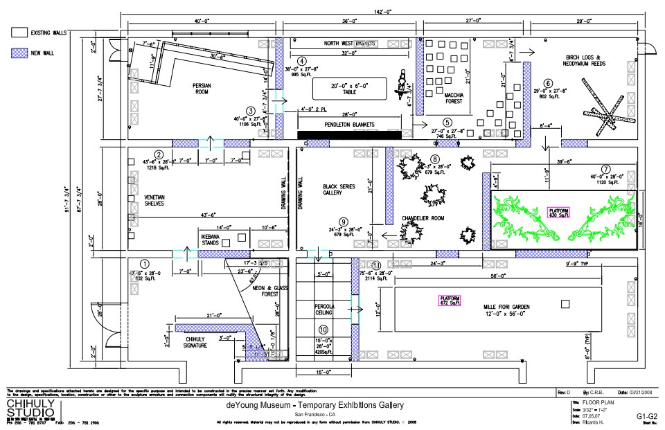
Chihuly at the De Young
Fine Arts Museums of San Francisco with Chihuly Studios, 2008
My role: Exhibition Design Associate and Project Manager

Select photos by Teresa Nouri Rishel, Chihuly Studio;
Curated by Tim Burgard; Graphic Design by Juliana Pennington; Contracting by Mayta & Jensen; Sheedy Drayage Co.; GFDS Engineers; Rutherford + Chekene Engineers; McClure Electric






/background(fff)/960x621.jpeg?auto=webp)
/background(fff)/960x621.jpeg?auto=webp)










